We use cookies to personalise content, to provide social media features and to analyse our traffic and support our customers. We also share information about your use of our site with our social media, advertising and analytics partners who may combine it with other information that you've provided to them or that they've collected from your use of their services. You consent to our cookies if you continue to use our website. Learn more

15 Meadow Brook, Tubbercurry, Co. Sligo, F91 N9Y3

Semi Detached House | Sale

Beds:
4
Baths:
2

Details

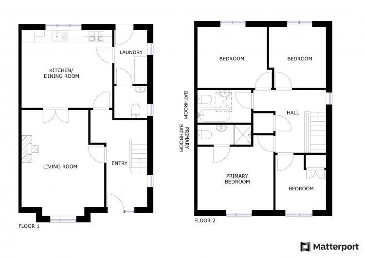
This is a well-maintained four-bedroom semi-detached home offering generous living space. The ground floor features a spacious layout, including a guest WC. Upstairs, there are four comfortably sized bedrooms, with the main bedroom benefiting from an en suite. The property also boasts the advantage of oil-fired central heating and double-glazed uPVC windows throughout.

Room Details

Name Description
Entrance Hall
Finished with tiled flooring and carpeted stairs to first floor. 11.2 sqm (120.55sqft)
Living Room
4.04m x 4.80m 13.25ft x 15.75ft
Finished with laminate wood flooring. Fireplace with insert stove. Bay window.
Kitchen/Dining Room
4.51m x 3.87m 14.80ft x 12.70ft
Finished with tiled flooring. Fitted kitchen with tile backsplash.
Utility Room
1.65m x 2.66m 5.41ft x 8.73ft
Finished with tiled flooring. Plumbed for washing machine & dryer. Door to rear garden.
Guest WC
1.63m x 1.57m 5.35ft x 5.15ft
Tiled flooring. WC & WHB.
Landing
Carpet flooring. Hot press off. 8.43sqm (90.73sqft)
Bedroom 1
3.65m x 3.67m 11.98ft x 12.04ft
Carpet flooring. Built in wardrobes. Ensuite off.
En-suite
Tiled floor. WC, WHB & Shower.
Bedroom 2
2.98m x 3.78m 9.78ft x 12.40ft
Finished with carpet flooring.
Bedroom 3
2.78m x 2.98m 9.12ft x 9.78ft
Finished with carpet flooring.
Bedroom 4
2.50m x 2.60m 8.20ft x 8.53ft
Finished with carpet flooring.
Bathroom
2.56m x 1.55m 8.40ft x 5.09ft
Fully tiled. WC, WHB & bath.

Map Details


Realtor

Claire Mannion

Estate Agent

Contact Claire